Nachmieter ab sofort für instandgesetzte Wohnung gesucht

< >

Objekttyp: Wohnung zur Miete
Objekt Nr.: 3044-0036

Adresse:
Bodelschwinghstraße 2
03042 Cottbus, Sandow
Anbieter

Gebäudewirtschaft Cottbus GmbH
Werbener Straße 3
03046 Cottbus

direkter Ansprechpartner:
Service Center
Email: service@gwc-cottbus.de
Telefon: +49 355 7826 400
Adresse: Am Turm 14, 03046 Cottbus
Webseite:
https://www.gwc-cottbus.de/

Unternehmensprofil

Herzlichen Dank!
Der Anbieter wurde informiert.
Die Nachricht konnte nicht versand werden. Bitte füllen Sie alle Felder aus.
Im Rahmen der DSGVO verweisen wir hinsichtlich der Verwendung Ihrer personenbezogenen Daten über das Kontaktformular, auf unsere Datenschutzerklärung.

Miete & Provision

Warmmiete: 727,58 €
Kaltmiete: 443,58 €
Nebenkosten: 284,00 €
Kautionsbetrag: 887,16 €
Provisionhinweis: Keine Maklercourtage

Angaben zum Objekt

Baujahr:1970
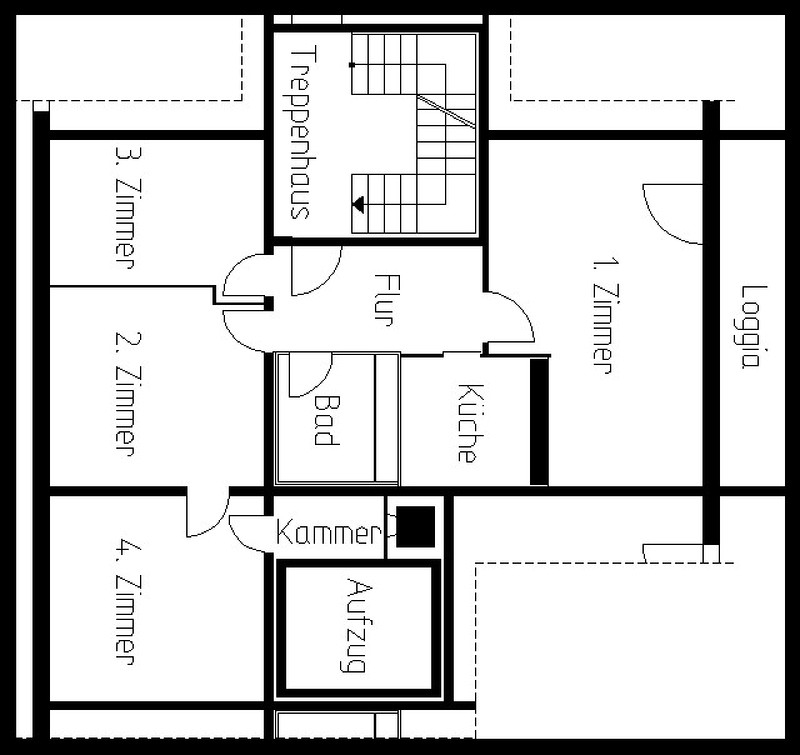
Zimmer:4
Wohnfläche:ca. 74,00 m²
Etage:2
Etagenanzahl:8
Küche:Küche ohne Fenster
Objektzustand:Teilsaniert
Beschreibung:

* komplettmodernisiert
* Pförtnerloge im Gebäude
* Aufzug
* Balkon, Loggia, Terrasse oder Wintergarten
* Balkon/Loggia
* Anschluss für E-Herd
* zentrale Warmwassererzeugung
* Fernheizung

Energieangaben

Gültig von-bis:01.01.1970 - 01.01.1970
Art des Energieausweises:Energieverbrauchsausweis Wohnung
Energieeffiziensklasse:EEK D <130 kWh/m2*a
Verbrauch inkl. Warmwasser:Ja
Befeuerung:Fernwärme

Anbieter

Gebäudewirtschaft Cottbus GmbH
Werbener Straße 3
03046 Cottbus

direkter Ansprechpartner:
Service Center
Email: service@gwc-cottbus.de
Telefon: +49 355 7826 400
Adresse: Am Turm 14, 03046 Cottbus
Webseite:
https://www.gwc-cottbus.de/

Unternehmensprofil